Omschrijving
Welkom aan de Aupingstraat 42 in Deventer.
Aan de rand van het jonge en duurzame Johannes Aupingkwartier ligt deze moderne tussenwoning met vier (slaap)kamers. De woning is in 2022 gebouwd, keurig onderhouden en volledig gasloos, waardoor u hier zorgeloos en toekomstbestendig kunt wonen.
Bij aankomst valt direct de strakke architectuur op: een moderne gevel met hoogwaardige materialen en een frisse uitstraling. Ook binnen is de afwerking tot in de puntjes verzorgd, met lichte wanden, vloerverwarming door het hele huis en een sfeervolle keuken en woonkamer.
De begane grond is ontworpen met oog voor ruimte en leefcomfort. De ruime woonkeuken aan de tuinzijde vormt het hart van de woning. Hier is plaats voor een grote eettafel – perfect voor lange avonden met familie of vrienden. Dankzij de openslaande deuren loopt de keuken naadloos over in de zonnige achtertuin, gelegen op het zuiden. De tuin is fraai aangelegd, onderhoudsvriendelijk en voorzien van een vrijstaande houten berging en achterom.
Dankzij de uitstekende isolatievoorzieningen en duurzame installaties heeft deze woning een A+++ energielabel. De combinatie van dak-, muur- en vloerisolatie, kunststof kozijnen met HR+++ beglazing en volledige vloerverwarming zorgt voor een aangenaam binnenklimaat. Daarnaast dragen de balansventilatie met warmteterugwinning (WTW), warmtepomp en 11 zonnepanelen bij aan een bijzonder laag energieverbruik. Het resultaat is een woning die niet alleen comfortabel en behaaglijk is – warm in de winter en koel in de zomer – maar ook helemaal klaar is voor de toekomst.
De ligging is eveneens ideaal: aan een rustige, groene straat in een kindvriendelijke buurt op de plek van de voormalige Auping-fabriek. In de directe omgeving vindt u diverse speelplaatsen, groenvoorzieningen en wandelroutes. Winkelcentra Keizerslanden en Borgele, scholen, kinderopvang, openbaar vervoer en het Zandweteringpark liggen allemaal op loopafstand. Binnen tien minuten fietsen bereikt u zowel het NS-station als het centrum van Deventer.
Kortom: een eigentijdse, energiezuinige woning op een aantrekkelijke locatie, waar modern wooncomfort en duurzaamheid hand in hand gaan.
Bouwjaar: 2022
Inhoud: ca. 502 m³
Woonoppervlakte: ca. 142 m²
Perceeloppervlakte: 114 m²
INDELING:
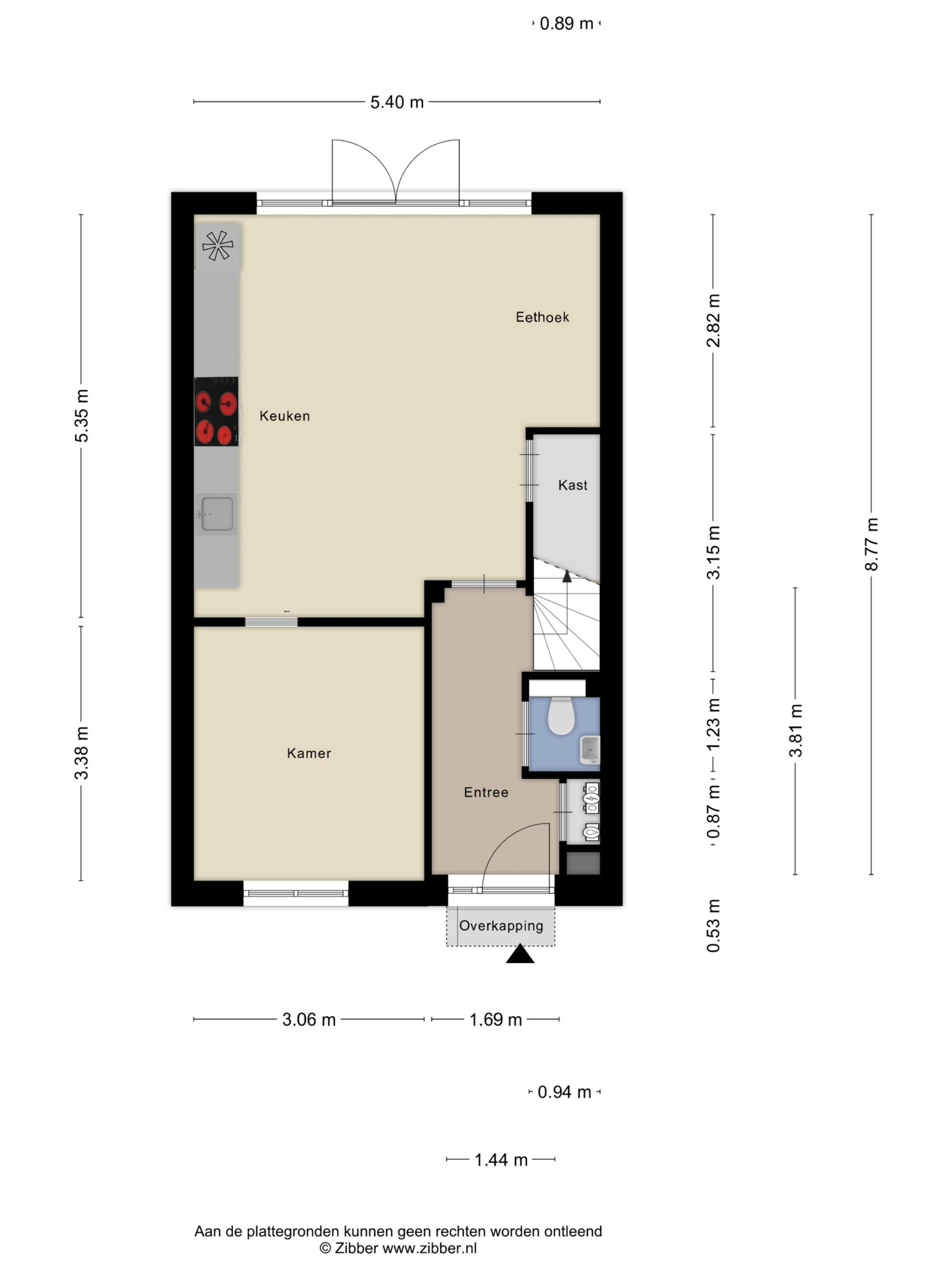
Begane grond: Via de entree komt u in de hal met de meterkast, een modern toilet met fontein en de trapopgang naar de eerste verdieping. Vanuit de hal bereikt u de ruime woonkeuken, die is ingericht met een gezellige zithoek en aan de achterzijde van de woning ligt. Dankzij de openslaande tuindeuren staat de ruimte in direct contact met de zonnige achtertuin. De praktische trapkast biedt extra bergruimte. Aan de voorzijde bevindt zich een (slaap)kamer die momenteel in gebruik is als thuiswerkplek – ideaal voor wie vanuit huis werkt of een hobbyruimte zoekt.
Eerste verdieping:
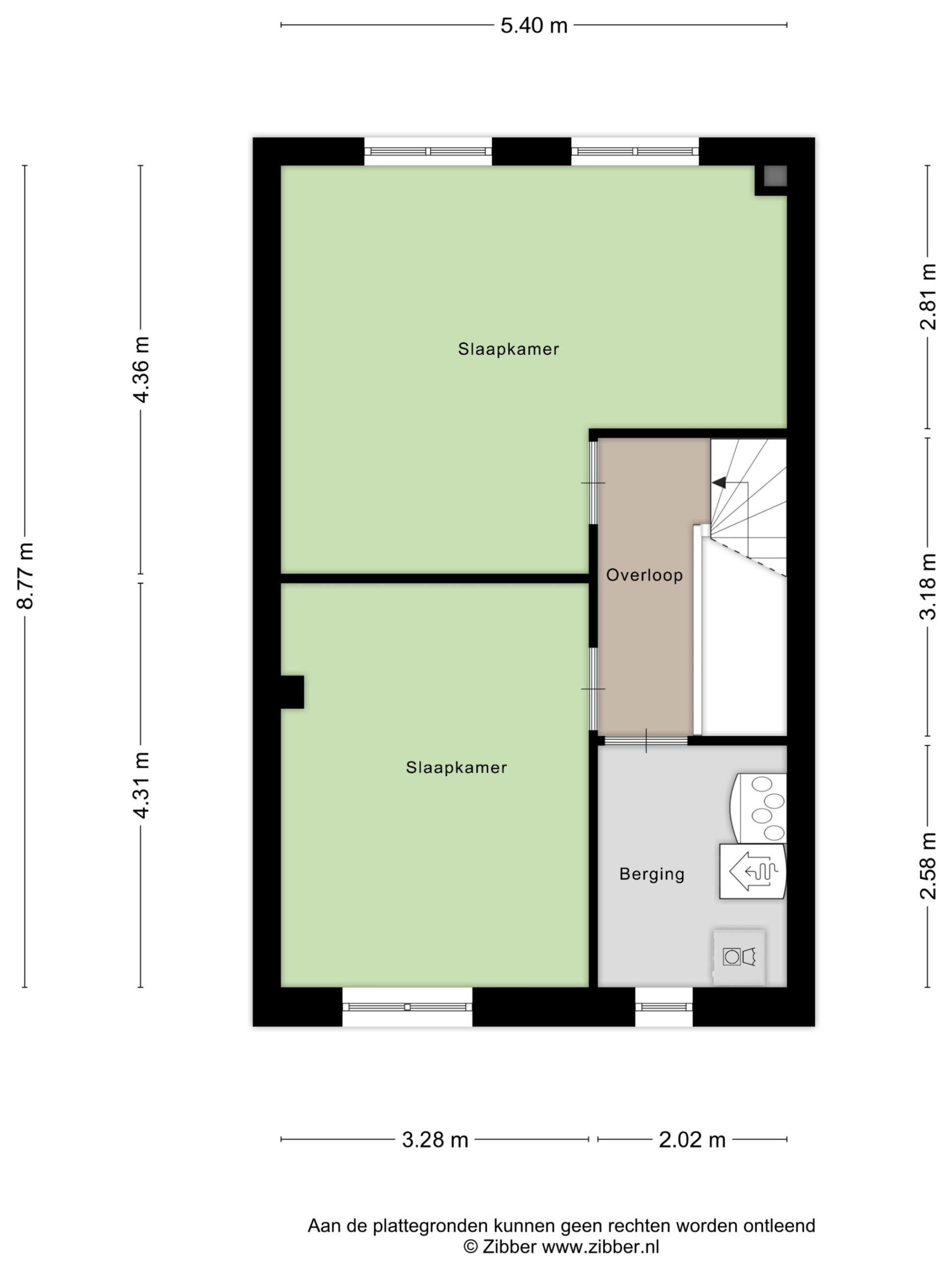
De overloop geeft toegang tot een royale woonkamer met veel lichtinval door de grote ramen. Op deze verdieping bevinden zich tevens een separate toiletruimte met hangcloset, een ruime slaapkamer en een moderne badkamer, voorzien van een inloopdouche, ligbad en wastafelmeubel.
Tweede verdieping:
Op de tweede verdieping bevinden zich nog twee ruime slaapkamers, waarbij de indeling de mogelijkheid biedt om desgewenst een derde kamer te realiseren. Verder is hier de technische ruimte gesitueerd met de installaties en de aansluiting voor de wasmachine en droger.
AANVULLENDE INFORMATIE
- Energielabel A+++
- Volledig geïsoleerd
- De woning is volledig voorzien van kunststof kozijnen met HR+++ beglazing
- Verwarming en warm water middels een warmtepomp (Misubishi, eigendom, 2022)
- Vloerverwarming door de gehele woning
- Gebalanceerd mechanisch ventilatiesysteem met WTW (Orcon, eigendom, 2022)
- Voorzien van 11 zonnepanelen (SolaXCloud, eigendom, 2022)
- Openbaar parkeren
- Meetrapport aanwezig
Interesse in deze instapklare gezinswoning?
Bel voor een afspraak met Adfinis Makelaars. 0570-642299
Of schakel direct uw eigen NVM aankoopmakelaar in. Uw NVM aankoopmakelaar komt op voor uw belang en bespaart u tijd, geld en zorgen.
FINANCIERING
Weten of de financiering in uw plaatje past? Benieuwd naar de lage maandlasten? Plan een financieel adviesgesprek met een adviseur van Van Bruggen Adviesgroep en kom beslagen ten ijs!