Omschrijving
Welkom aan de Davostraat 22 in Deventer.
Aan de rand van het bruisende centrum van Deventer in een rustige straat staat deze royale tussenwoning met een indeling die net even iets anders is dan normaal, slapen op de begane grond en wonen op de 1e verdieping met een groot terras (18 m²) met uitzicht over de achterliggende binnentuin. De woning is goed onderhouden en heeft 3 woonlagen.
De locatie is absoluut een pluspunt: op loopafstand vindt u het NS-station, het prachtige Rijsterborgherpark, de IJssel met haar uiterwaarden en het gezellige stadscentrum. Daarnaast zijn diverse voorzieningen zoals supermarkten, scholen, lokale winkels en openbaar vervoer in de directe omgeving. Met de auto bent u binnen 10 minuten op de uitvalswegen.
Kortom, een fijne en ruime woning op een ideale plek!
Bouwjaar: 2004
Inhoud: ca. 405 m³
Woonoppervlakte: ca. 114 m²
INDELING
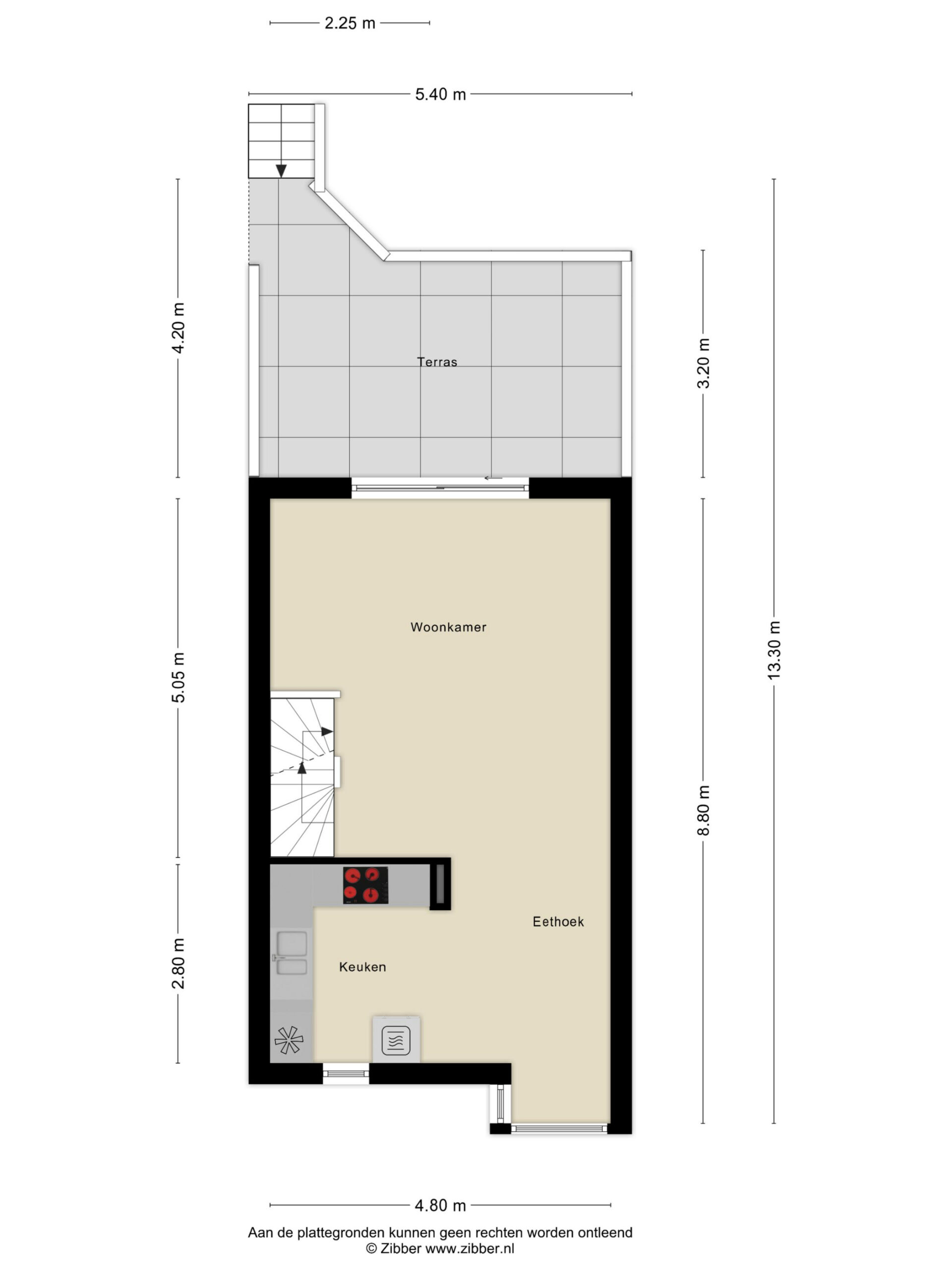
Begane grond: Je komt via de voordeur binnen in de ruime hal. In de hal tref je het toilet met fontein, meterkast en de trapopgang naar de eerste verdieping. Vanuit deze entree heb je toegang tot twee slaapkamers; een ruime aan de achterkant, en nog een slaapkamer aan de voorzijde. De slaapkamers op de begane grond zijn lekker koel zomers, een groot voordeel met de warme zomers van nu.
Ook loop je vanuit de hal de grote badkamer in, die is voorzien van een wastafel en een ruime inloopdouche. De hal is daarnaast verbonden met de berging, waar je de aansluiting voor de wasmachine vindt. Hier heb je tevens extra ruimte voor bijvoorbeeld een vrieskist of om je fietsen te stallen.
Vanuit de berging heb je toegang tot een ruimte achter het huis waar je je containers en je fietsen neer kunt zetten.
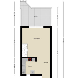
Eerste verdieping: Deze woning heeft geen traditionele indeling; dit geeft een hele eigen sfeer aan het huis. Als je de trap naar boven neemt, kom je uit in een ruime woonkamer die overloopt in de keuken aan de voorzijde van de woning. De keuken is voorzien van inbouwapparatuur, zoals een vaatwasser, inductiekookplaat en een koelvriescombinatie. De woonkamer ligt aan de achterkant en is met schuifdeuren verbonden met het terras dat gelegen is op het zuidoosten. Door de ramen en ligging, valt er veel daglicht naar binnen.
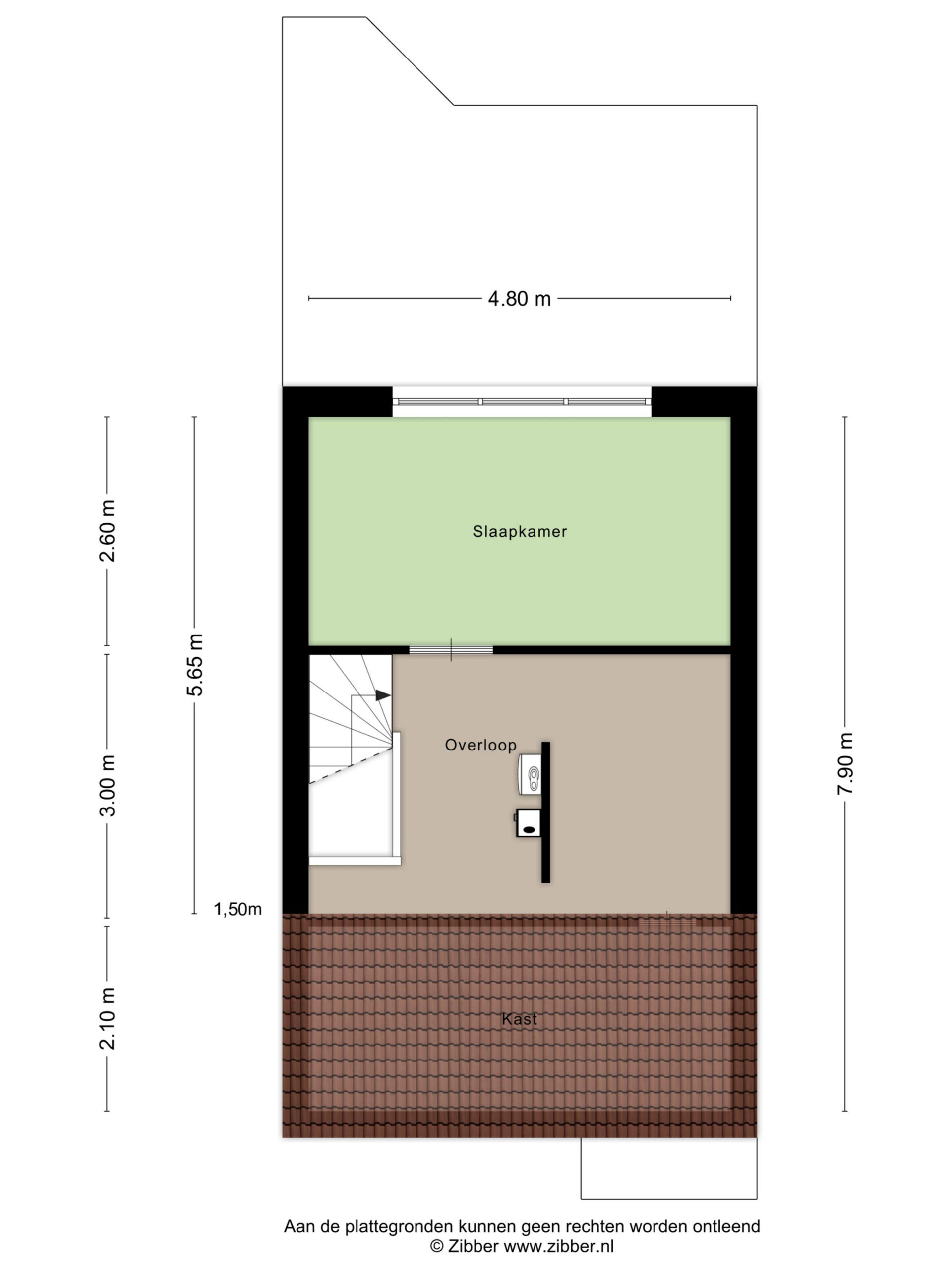
Tweede verdieping: Via een vaste trap kom je op de overloop van de tweede verdieping. Op de tweede verdieping vind je de derde ruime slaapkamer en een ruimte die naar wens kan worden ingericht, bijvoorbeeld als studeerkamer. Zoek je nog ruimte om je spullen op te bergen? Dan kun je die hier kwijt achter een knieschot. Op de overloop is de opstelplaats van de mechanische ventilatie en de cv-ketel te vinden.
Buitenruimte: Op de begane grond vind je achter de woning een ruimte om je containers en fietsen neer te zetten. Verder beschikt het huis over een privé terras gelegen op het zuidoosten en over een gemeenschappelijke tuin. Voor de gemeenschappelijke tuin betaal je jaarlijks een bijdrage van €193,00 voor het onderhoud.
AANVULLENDE INFORMATIE
- Energielabel A
- De woning is volledig geïsoleerd
- Voorzien van 6 zonnepanelen
- Volledig voorzien van isolerende beglazing
- Verwarming en warm water middels een CV-installatie
- Openbaar parkeren
- Meetrapport aanwezig
Interesse in deze nette tussenwoning?
Bel voor een afspraak met Adfinis Makelaars.
Of schakel direct uw eigen NVM aankoopmakelaar in. Uw NVM aankoopmakelaar komt op voor uw belang en bespaart u tijd, geld en zorgen.
FINANCIERING
Weten of de financiering in uw plaatje past? Benieuwd naar de lage maandlasten? Plan een financieel adviesgesprek met een adviseur van Van Bruggen Adviesgroep en kom beslagen ten ijs!