Omschrijving
Welkom aan de Minckelersstraat 74b in Den Haag.
Op een centrale locatie is in 2021 dit transformatieproject gerealiseerd. Het betreft een subliem afgewerkte en energiezuinige (label A) benedenwoning van circa 40 m² woonoppervlak, voorzien van een sfeervolle living met hoog plafond, luxe open keuken, één slaapkamer, moderne badkamer en een achtertuin.
De buurt rondom de Minckelersstraat kenmerkt zich door gemak, met alle dagelijkse voorzieningen binnen handbereik. Supermarkten, lokale winkels en sportclubs bevinden zich op korte afstand, terwijl diverse basisscholen en middelbare scholen gemakkelijk te bereiken zijn. Openbaar vervoer treft u op loopafstand, met meerdere tram- en bushaltes die u snel verbinden met andere delen van Den Haag en omliggende steden. Daarnaast zorgen nabijgelegen uitvalswegen voor een vlotte aansluiting richting onder meer Rotterdam en Leiden, waardoor deze locatie zowel voor forenzen als stedelijke genieters bijzonder praktisch is.
INDELING
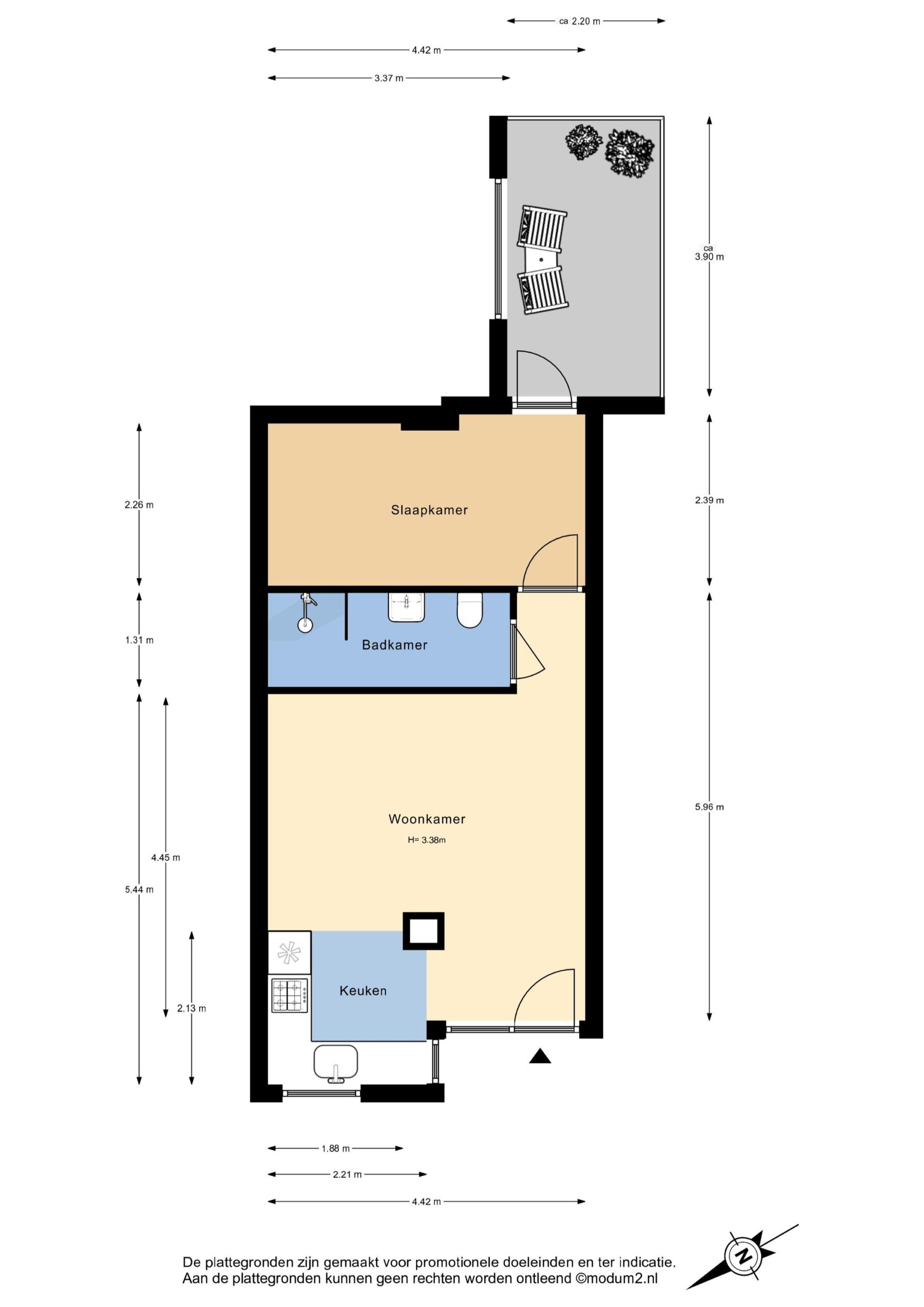
Gesloten entree op straatniveau met gezamenlijke ontvangsthal en toegang tot het appartement. De industriële living beschikt over hoge plafonds van circa 3,40 meter, strak gestuukte wanden, een fraaie laminaatvloer en een netjes weggewerkte meterkast (6 groepen).
De luxe open keuken is uitgevoerd in een L-vormige opstelling met lichte kasten en lades, een donker aanrechtblad en diverse inbouwapparatuur, waaronder een 4-pits inductiekookplaat, koel-/vriescombinatie, oven-magnetron, vaatwasser en spoelbak met mengkraan. Hier bevindt zich tevens de opstelplaats van de HR cv-ketel (Intergas, 2020).
Vanuit de slaapkamer is er toegang tot de achtertuin, gunstig gelegen voor de ochtend- en middagzon.
De ruime slaapkamer is gesitueerd aan de achterzijde van de woning. De luxe badkamer is royaal van opzet en afgewerkt met modieuze wand- en vloertegels. Deze is voorzien van een ruime inloopdouche met hand- en stortdouche, een wastafelmeubel met mengkraan en spiegelwand, een zwevend toilet en een designradiator.
AANVULLENDE INMFORMATIE
Woonoppervlakte ca. 40 m²
Wooninhoud ca. 165 m³
Bouwjaar 1930, Transformatiejaar 2020
Actieve vereniging van eigenaren, maandelijkse bijdrage €68,-
Energielabel A, geldig tot 16-08-2031
Gelegen op erfpacht grond welke eeuwigdurend is afgekocht
Gemeentelijk BSG Laakkwartier